導入事例 -グランステラキャビン富士山中湖様(山梨県山中湖村)
Published On: Jul 28th, 2025 , Categories: Story
グランステラキャビン富士山中湖は、山梨県山中湖村に、富士山の絶景を臨む立地で2022年4月に誕生いたしました。
今回は、誕生秘話、そして施設の特徴をお伝えします。
(トレーラーハウスの詳細はこちら)
導入の経緯
企画当初は、新型コロナウィルスが猛威をふるっていた時期であり、オーナー様が運営されていた宿泊施設もとても苦労されていた時期でした。そのなかで、事業転換を図る目的で、脚光を浴び始めていた、「グランピング」という新しいカテゴリーへの進出を、チャレンジとして取り組まれました。
「ラグジュアリー=体験をデザインする」ことを、エリアノはオリジナルでこだわったデザインとしたトレーラーハウスのご提供でお応えをさせていただきました。
「グランステラキャビン富士山中湖」概要
施設コンセプトは、『大自然×ラグジュアリー』の圧倒的非日常空間の提供 でした。
山中湖村は日本でも有数の観光地であり、アクティビティも充実しています。山中湖へは徒歩圏内で歩いて行けるという恵まれた立地です。
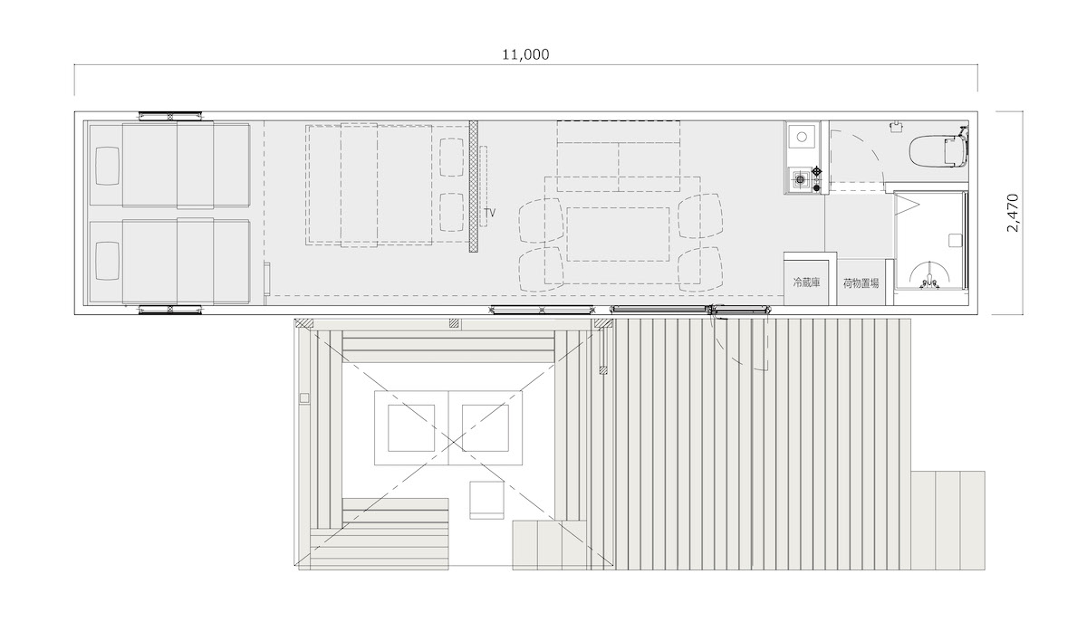
敷地では、長さ11mのビッグサイズの宿泊トレーラーハウスと、長さ8mのミドルサイズの宿泊トレーラーハウスの2種類、計6台が設置されています。

トレーラーハウスの特徴

【外観】
外観は、正面を天然木の下見板張りとし、周辺自然の情景との一体感を重視したデザインといたしました。そして各トレーラーハウスには、それぞれ専用のウッドデッキ空間が併設されていて、そのなかには、BBQもできるオリジナルの焚火台を囲む囲炉裏空間があります。

【プランニング】
トレーラーハウスは、道路運送車両法により最大のサイズに制限があります。そのため、最大でも長さ11m、横幅2.5mのなかで、メリハリの効いたレイアウトとしながら、使い勝手と開放感の演出の両立を図ることが重要です。
トイレ、シャワールーム、キッチンなど水廻りをコンパクトな動線を確保しながら配置し、最大6名が寝られる空間といたしました。リビングとベッドルームの境界は、天井まである境界壁ではなく腰壁程度の高さとすることで、狭さを感じさせにくい計画とし、同時に開口部を大きく設けて、明るさと広さを感じられる計画といたしました。

【内観】
内観にも大変こだわったデザインを実施いたしました。何度も訪れていただきたいという思いから、全6室が全てちょっとずつ異なる家具や内装デザインとしています。
天井は、ヒノキ板に塗装をしつつ、白を基調としたシンプルな内装といたしました。
インテリアには、プロのインテリアコーディネーターがとてもセンスのよいセレクトをしてくださり、内装の上質なアクセントと調和をもたらしました。

そして、避暑地でもありながら、冬になるととても寒い地域でもあるため、断熱性(発泡ウレタンによる隙間のない断熱施工)にもこだわった仕様となっています。
【グランステラキャビン富士山中湖 施設情報】
グランステラキャビン富士山中湖は、2022年4月にオープンした富士山中湖畔のグランピング施設です。全6棟のラグジュアリートレーラーハウスからは富士山の絶景と満天の星空を望めます。各棟にキッチンやバスルームを完備し、プライベートなデッキで囲炉裏BBQや焚き火を楽しめます。自然と一体になれる贅沢な非日常体験を提供します。
所在地:山梨県南都留郡山中湖村平野1432
URL:https://glanstellacabin.com/
※施設のご予約も、こちらからお願いいたします。
株式会社エリアノからのお知らせ
株式会社エリアノは、地域の魅力を最大限に活かした、新しい宿泊施設の開発・運営に取り組んでいます。グランステラキャビン富士山中湖様のトレーラーハウスをはじめ、様々なコンセプトの宿泊施設にご興味をお持ちいただけましたら、お気軽にお問い合わせください。
お客様の多様なニーズにお応えできるよう、最適なプランをご提案させていただきます。
関連ロケーション
お問い合わせ
一覧に戻る